3 bed House - End Terrace For Sale

15, Kylintra Crescent, Grantown on Spey, PH26 3ES

Offers Over £115,000

bedrooms3
receptions1
bathrooms1

Set within a well-established residential area, this three-bedroom end-terraced property offers generous accommodation over two levels and presents an excellent opportunity for buyers seeking a home with strong potential to add value. The property comprises a bright and spacious sitting room with triple windows allowing for an abundance of natural light, a sizeable kitchen with good storage and worktop space offering clear scope for redesign, and a ground floor bathroom, while the upper level provides three well-proportioned bedrooms suitable for family living, guest accommodation and flexible home working. Externally, the property benefits from sizable garden grounds to the rear and side, providing excellent outdoor space with potential for landscaping or general improvement, along with off-street parking to the front. Although the property is currently in a more basic and dated condition a programme of upgrading and modernisation throughout would add value and it offers a solid layout and excellent footprint for redevelopment. It should be noted that the property is of non-traditional construction and is therefore not considered suitable security for standard mortgage lending, and as such is likely to appeal primarily to cash purchasers or buyers utilising specialist finance. Overall, this is a fantastic opportunity to acquire a spacious home with significant potential in a convenient and established location. EPC E, Council Tax B, Home report available online at massoncairns.com

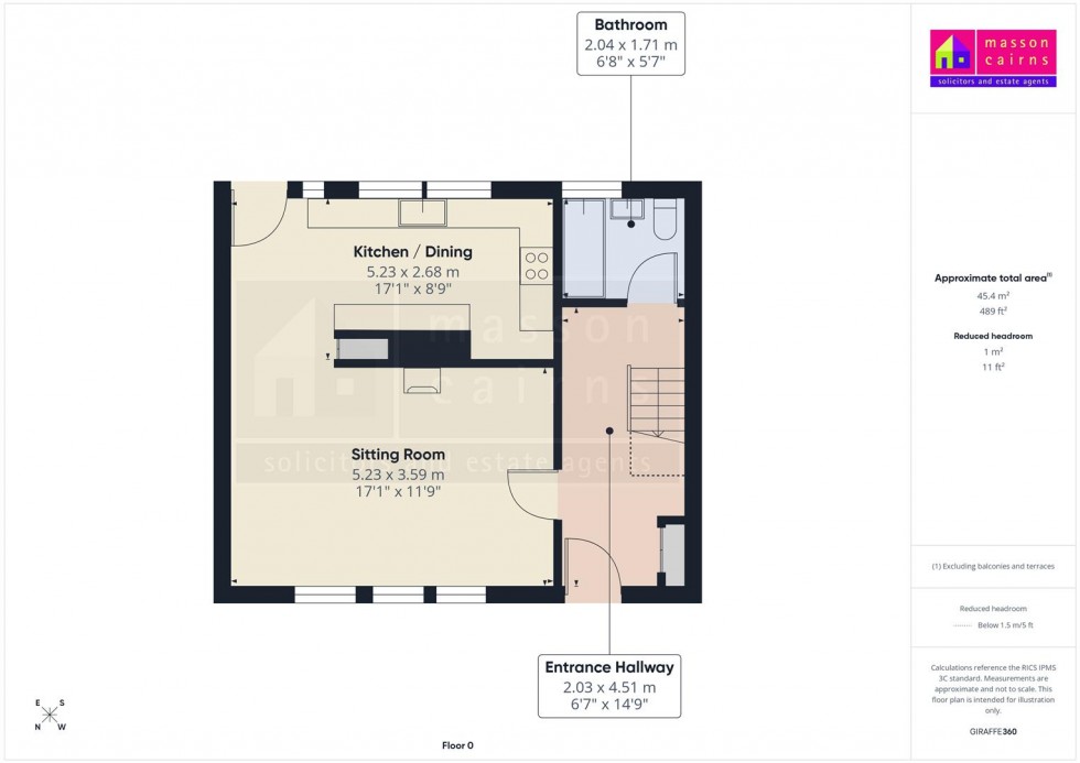
Floorplan for 15 Kylintra Crescent, Grantown on Spey Floorplan for 15 Kylintra Crescent, Grantown on Spey

Tell us a little more and we will call you


1About You


2Pick Preferred Day


  1. This Week
  2. Next Week
  3. In a Fortnight

Grantown On Spey

Grantown on Spey is a charming town nestled in the heart of the Scottish Highlands, known for its picturesque beauty and rich cultural heritage. Located in the Cairngorms National Park, Grantown on Spey is surrounded by breathtaking scenery, including lush forests, sparkling rivers, and rolling hills. The town itself boasts a range of historic landmarks and attractions, including the Grantown Museum and the Grantown Heritage Trail. Visitors and residents can also enjoy a range of outdoor activities, including hiking, biking, fishing, and golfing, or simply take in the stunning scenery with a leisurely stroll around town.

Grantown on Spey also offers a range of shops, restaurants, and amenities, making it a convenient and comfortable place to call home. The town has a strong sense of community, with a range of social and cultural events throughout the year, including the popular Grantown Show, Thunder in the Glens Ride out and the annual Christmas market. Whether you're looking to explore the great outdoors, immerse yourself in local history and culture, or simply enjoy the peace and tranquility of the Scottish countryside, Grantown on Spey offers something for everyone.

Transport Links

From Grantown on Spey, you can conveniently access various transportation options to explore the wider UK:

Airports:
Inverness Airport (INV): Approximately 34 miles away, this regional airport offers domestic flights and some international connections.
Aberdeen International Airport (ABZ): Roughly 80 miles away, providing a wider range of domestic and international flights.

Train Stations:
Carrbridge Railway Station: About 10 miles from Grantown on Spey, offering connections to Inverness, Perth, and Edinburgh.
Aviemore Railway Station: Approximately 14 miles away, with regular services to Inverness, Glasgow, Edinburgh and London, as well as connections to the wider UK rail network.

Road Routes:
A95: This arterial road connects Grantown on Spey to the A9, a major north-south route traversing Scotland, providing access to Inverness, Perth, Stirling, and Glasgow.
A939: This scenic route connects Grantown on Spey to the A96, linking Inverness to Aberdeen, offering an alternative route to eastern Scotland.
With these options, Grantown on Spey serves as a convenient base for exploring the UK's diverse destinations, whether traveling by air, rail, or road.

Home Report

To obtain a copy of the home report, please visit our website massoncairns.com where an online copy is available to download.

EPC Rating E

Entrance Hallway

Access is via a front door into a welcoming hallway providing access to the main ground floor accommodation and with a staircase to the upper level.

Sitting Room (5.23m x 3.59m)

Located to the front of the property, the sitting room is a bright and spacious area enhanced by triple windows which allow for an abundance of natural light and an open outlook. The room features a solid fuel stove with back boiler, forming a focal point within the space while also offering functional heating to the radiators. The layout is open plan, flowing through to the kitchen dining area.

Kitchen / Dining (5.23m x 2.68m)

Positioned to the rear of the property, the kitchen offers a good amount of worktop space along with a range of fitted units. A large window runs the length of the room, allowing in plenty of natural light and giving the space a bright, open feel. There is also enough room for a small dining table or breakfast area and a glazed door leads out the rear garden.

Bathroom (2.04m x 1.71m)

The bathroom is located on the ground floor and comprises a bath with shower over, wash hand basin, and WC. The walls are partially tiled around the bath area, providing a practical finish, and an opaque window to the rear allows for natural light and ventilation.

Landing

The upper landing provides access to all three bedrooms and includes a large shelved linen cupboard offering useful storage. A window to the front allows for natural light, creating a bright and open feel to the space and there is also a loft hatch providing access to the attic space.

Bedroom One (4.55m x 2.69m)

Located to the front of the property, this is a spacious double room featuring a large triple window which allows for plenty of natural light. The room also benefits from an integral wardrobe, providing convenient built-in storage.

Bedroom Two (3.53m x 3.60m)

Another well-proportioned double bedroom, located to the rear of the property and benefiting from a large triple window which provides good natural light. The room also features integral wardrobe storage, offering practical built-in space.

Bedroom Three (3.83m x 2.69m)

Bedroom three is located to the rear of the property and features a double window overlooking the garden, allowing for good natural light and a pleasant outlook. The room also benefits from an integral storage wardrobe

Outside

Externally, the property benefits from generous garden grounds to the rear and side, offering excellent potential for landscaping or redevelopment. The rear garden is of a good size, with outbuildings providing additional storage, although the space is currently in a basic condition and would benefit from clearing and improvement. To the front, there is a driveway providing off-street parking, along with a low-maintenance garden area. Overall, the outdoor space offers plenty of scope for easy enhancement.

Services

It is understood that there is mains water, drainage and electricity. There is a solid fuel stove with back boiler central heating.

Entry

By mutual agreement.

Price

Offers over £115,000 are invited

Viewings and Offers

Viewing is strictly by arrangement with and all offers to be submitted to:-Masson Cairns
Strathspey House
Grantown on Spey
Moray
PH26 3EQ
Tel: (01479) 874800
Fax: (01479) 874806
Email: property@lawscot.com
www.massoncairns.com

Copyright Information

All media content produced by Masson Cairns Ltd, including but not limited to images, videos, graphics, and written materials remains the property of Masson Cairns Ltd and is protected by copyright law. No part of this content may be reproduced, distributed, modified, or used in any form without the prior express written permission of Masson Cairns Ltd. Unauthorised use of this material is strictly prohibited and may result in legal action.

View EPC

Call us to discuss a viewing

phone 01479 874800

Save Property Save PropertySaved

need conveyancing

Need conveyancing?

Our Professional and Experienced, team are available

Find out more
Zoopla Primelocation Rightmove s1 homes OnTheMarket