2 bed House - Terraced For Sale

Vorlich, 38, Main Street, Tomintoul, AB37 9EX

Offers Over £170,000

bedrooms2
receptions2
bathrooms2

A fantastic opportunity to acquire a substantial and rarely available stone-built home in the heart of Tomintoul, offering generous accommodation, large gardens and a separate workshop/garage. This characterful property provides excellent scope for modernisation and future enhancement, presenting an ideal prospect for families, investors or those seeking a spacious Highland home. The ground floor includes a bright sitting room with feature fireplace, a large dining room and kitchen with direct garden access, and a well-proportioned bathroom in addition to a sun porch. Upstairs, there are two comfortable bedrooms along with a shower room, while a large floored attic offers superb additional storage. Externally, the property enjoys an extensive rear garden with lawn, mature shrubs and open outlooks, creating a private outdoor space ideal for relaxation or cultivation. The detached workshop/garage provides excellent versatility for hobbies, storage or possible conversion (subject to the necessary consents). Some other properties in the village have sold off garden space as property plots (subject to the necessary consents. Tomintoul itself is the highest village in the Highlands and sits within the Cairngorms National Park, famed for its breathtaking scenery, outdoor pursuits, and welcoming community. The village forms part of the Tomintoul & Glenlivet International Dark Sky Park, one of the best stargazing locations in Europe, offering spectacular night skies and year-round astronomical displays. With walking, cycling, winter sports and wildlife on the doorstep, this is a superb base for enjoying the very best of Highland living. Conveniently positioned within walking distance of local shops, cafés and amenities, this appealing home combines space, character and exceptional potential. EPC E, Council Tax C Home report available at massoncairns.com

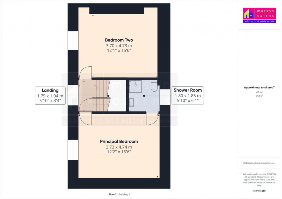
Floorplan for Vorlich, 38 Main Street, Tomintoul Floorplan for Vorlich, 38 Main Street, Tomintoul Floorplan for Vorlich, 38 Main Street, Tomintoul Floorplan for Vorlich, 38 Main Street, Tomintoul

Tell us a little more and we will call you


1About You


2Pick Preferred Day


  1. This Week
  2. Next Week
  3. In a Fortnight

Tomintoul

Tomintoul is the Eastern Gateway to the Cairngorms National Park and has the reputation of being the highest village in the Highlands at 1165 ft (350m) centred round a picturesque square and situated near the Lecht Ski Resort Centre on the scenic route between Grantown on Spey and Royal Deeside. It is the largest village in the Glenlivet area supporting B&B's, a post office and general stores, art studios, craft, gift and malt whisky shops.

Tomintoul also has its own distillery, "the Tomintoul", which made the Guinness Book of Records for producing "The Largest Bottle of Scotch Whisky in The World" - at 105.3 litres. There are also three more stills, "The Tamnavulin", "The Braeval" and "The Glenlivet" within a few miles.

The area is surrounded by the mountain ranges of the Cromdales, the Ladder Hills and the Cairngorms, facilitating spectacular views, walks and other outdoor pursuits, including wildlife appreciation, salmon and trout fishing on the nearby River Avon, mountain biking on many trails and nearby bike Glenlivet and hill walking a plenty.

The nearby Lecht Ski Centre 2090 provides winter sports and mountain biking in the summer

Transport Links

Located in the heart of the Highlands, Tomintoul offers a number of convenient travel options for local, regional, and international travel.

Road: Tomintoul is well-connected via road with the A939, a major scenic route running through Speyside, providing easy access to both Aberdeen to the east and Inverness to the north.

Air: The nearest airports are Inverness Airport (approximately 43 miles away) and Aberdeen International Airport (approximately 56 miles away), offering both domestic and international flights.

Rail: The nearest railway station is Aviemore (around 27 miles away), which is on the main line from Inverness to London, providing connections to major cities across the UK.

Public Transport: There are regular bus services that run through Glenlivet connecting it to neighbouring towns and villages.

For schooling, Tomintoul falls within the Moray Council area, which provides a comprehensive education system. Primary education is available at Tomintoul Primary School, a small but well-regarded school located right in Tomintoul. For secondary education, pupils typically attend Speyside High School in Aberlour, which is approximately 21 miles away and offers a broad curriculum.

For further education, the University of the Highlands and Islands offers a range of courses and has several campuses throughout the Highlands, with the nearest being in Elgin and Inverness. Other universities in Aberdeen and Dundee are available.

Home Report

To obtain a copy of the home report, please visit our website massoncairns.com where an online copy is available to download.

EPC Rating eE

Entrance Hallway

The entrance hall offers a welcoming introduction to the home. Spacious and practical it provides access to most of the property’s accommodation. Finished with carpet flooring and ceiling lighting, there is also a cupboard that makes use of space under the stairs.

Sitting Room (3.68m x 4.80m)

The sitting room is a well-proportioned and comfortable space with carpet flooring and ceiling lighting, centred around a traditional brick fireplace. A front-facing window provides good natural light, and the room connects to the hallway and sun porch.

Dining Room (3.37m x 4.72m)

The dining room offers a generous and versatile space ideal for everyday family meals or more formal entertaining. A large window draws in natural light from the front, and there is access through to the kitchen enhancing flow and practicality. A further doorway leads back to the main hall, providing easy access to the rest of the ground floor accommodation. The room also features an attractive fireplace surround that adds a traditional focal point to the space in addition to carpet flooring and ceiling lighting.

Kitchen (3.23m x 5.36m)

The kitchen, positioned to the rear, is spacious and filled with natural light, offering the opportunity to modernise and create a superb space overlooking the gardens. Currently the space is fitted with an excellent range of base, drawer and wall units, complimentary work surfaces and a tiled splashbacks. Integral appliances include a double oven / grill and a gas hob with extraction over. There is under counter space and plumbing for appliances such a washing machine, dishwasher, tumble dryer and fridge freezers. A large cupboard houses the hot water tank and provides shelved storage.

Bathroom (3.44m x 2.05m)

The bathroom is well appointed with a three-piece suite comprising WC, wall mounted wash hand basin with mirror, light and shelf above, and full sized bath. A window ensures the room is filled with natural light whilst providing ventilation. There are a series of large shelved cupboards providing extensive room for storing linens. The room is finished with a towel radiator, carpet flooring and ceiling lighting.

Sun Porch (2.73m x 3.10m)

The sun porch, currently used as a storage area, is a light filled space with direct access to the rear garden and patio. There is a radiator, ceiling lighting and a sky light providing further admission of natural light.

Landing

The landing provides access to two bedrooms on this floor. There is carpet flooring and ceiling lighting. There is door and staircase that leads to the attic space.

Principal Bedroom & En-suite (3.73m x 4.74m & 1.80m x 1.86m)

The principal bedroom is a generously proportioned space, enhanced by a picture window to the front that fills the room with natural light. The room features space for freestanding furniture such as wardrobes and drawers. The room is finished with soft carpet flooring and ceiling lighting. The en-suite shower room is a functional space, housing a shower enclosure with electric shower and tiled surround, pedestal wash hand basin and a WC. There is ceiling lighting and a window to the rear provides a source of natural light as well as ventilation.

Bedroom Two (3.70m x 4.73)

A bright and generously sized double room with a window to the front that fills the space with natural light. The room features space for freestanding furniture such as wardrobes and drawers. As well as two shelves alcoves. There is ceiling lighting and carpet flooring.

Attic Space (10.00m x 6.76m)

The attic is accessed via a staircase which provides entry to a partially floored space providing an abundance of storage. A Velux window provides a source of natural light and ventilation. The space conveniently houses the header tank.

Outside

Vehicular and pedestrian access to the front of the property is via the Main Street. Vorlich also features a sizeable rear garden and plot extending to circa 0.18 acres. Mainly laid to lawn, with a stone path leading to the rear patio and access to the home via the kitchen or sun porch. The space is bound by a mixture of mature hedging and fencing. A small out building (1.40m x 3.25m) provides useful garden storage as well as housing the oil fired boiler. Beyond the rear garden an additional area provides off street parking for several vehicles. There is a timber shed and a larger double garage / workshop space (5.47m x 6.54m) providing an abundance of storage. The oil tank is also located to the rear of the property.

Services

It is understood that there is mains water, drainage and electricity. There is oil fired central heating.

Entry

By mutual agreement.

Price

Offers over £170,000 are invited

Viewings and Offers

Viewing is strictly by arrangement with and all offers to be submitted to:-Masson Cairns
Strathspey House
Grantown on Spey
Moray
PH26 3EQ
Tel: (01479) 874800
Fax: (01479) 874806
Email: property@lawscot.com
www.massoncairns.com

View EPC

Call us to discuss a viewing

phone 01479 874800

Save Property Save PropertySaved

need conveyancing

Need conveyancing?

Our Professional and Experienced, team are available

Find out more
Zoopla Primelocation Rightmove s1 homes OnTheMarket