Land - Building Plot For Sale

House Site, 76, Main Street, Tomintoul, AB37 9HA

Offers Over £30,000

An exciting opportunity to acquire a house site in the sought-after Highland village of Tomintoul, set within the spectacular Cairngorms National Park and along the renowned Snow Roads and North East 250 tourist routes. The plot extends to approximately 0.15 acres (around 621 sqm) and enjoys a peaceful setting within easy reach of the village amenities and surrounding countryside.

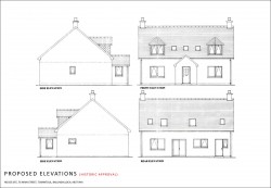
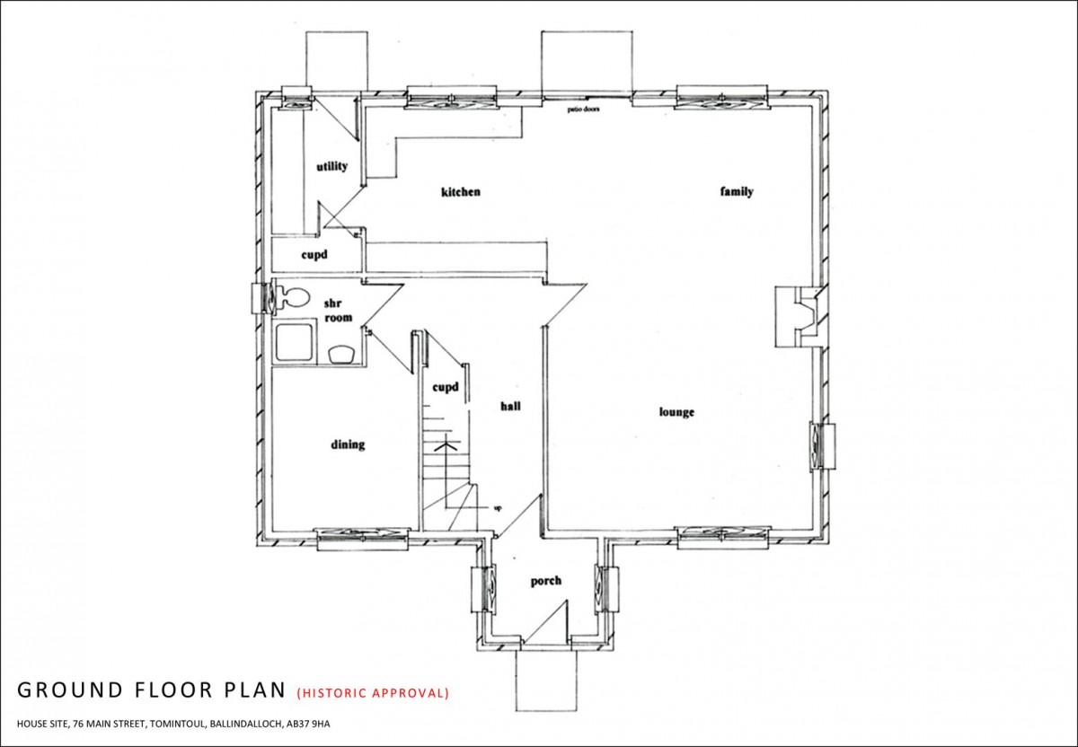
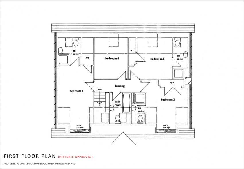
The site has a positive planning history, with several historic consents previously granted for the erection of a four-bedroom, one-and-a-half storey dwellinghouse, reflecting the site’s suitability for residential development. While these permissions have now lapsed, they demonstrate a strong precedent for future planning potential.

This plot offers an excellent opportunity to create a bespoke home in a beautiful and accessible Highland location, ideal for those seeking outdoor adventure, natural beauty, and village living within the heart of the Cairngorms National Park.

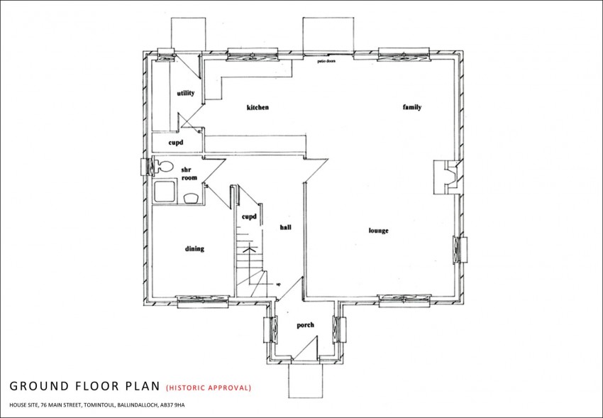
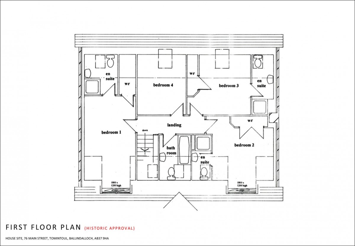
Floorplan for House Site, 76 Main Street, Tomintoul

Tell us a little more and we will call you


1About You


2Pick Preferred Day


  1. This Week
  2. Next Week
  3. In a Fortnight

Tomintoul

Tomintoul is the Eastern Gateway to the Cairngorms National Park and has the reputation of being the highest village in the Highlands at 1165 ft (350m) centred round a picturesque square and situated near the Lecht Ski Resort Centre on the scenic route between Grantown on Spey and Royal Deeside. It is the largest village in the Glenlivet area supporting B&B's, a post office and general stores, art studios, craft, gift and malt whisky shops.

Tomintoul also has its own distillery, "the Tomintoul", which made the Guinness Book of Records for producing "The Largest Bottle of Scotch Whisky in The World" - at 105.3 litres. There are also three more stills, "The Tamnavulin", "The Braeval" and "The Glenlivet" within a few miles.

The area is surrounded by the mountain ranges of the Cromdales, the Ladder Hills and the Cairngorms, facilitating spectacular views, walks and other outdoor pursuits, including wildlife appreciation, salmon and trout fishing on the nearby River Avon, mountain biking on many trails and nearby bike Glenlivet and hill walking a plenty.

The nearby Lecht Ski Centre 2090 provides winter sports and in the summer has quad biking and go-carts.

Transport Links

Located in the heart of the Highlands, Tomintoul offers a number of convenient travel options for local, regional, and international travel.

Road: Tomintoul is well-connected via road with the A939, a major scenic route running through Speyside, providing easy access to both Aberdeen to the east and Inverness to the north.

Air: The nearest airports are Inverness Airport (approximately 43 miles away) and Aberdeen International Airport (approximately 56 miles away), offering both domestic and international flights.

Rail: The nearest railway station is Aviemore (around 27 miles away), which is on the main line from Inverness to London, providing connections to major cities across the UK.

Public Transport: There are regular bus services that run through Glenlivet connecting it to neighbouring towns and villages.

For schooling, Tomintoul falls within the Moray Council area, which provides a comprehensive education system. Primary education is available at Tomintoul Primary School, a small but well-regarded school located right in Tomintoul. For secondary education, pupils typically attend Speyside High School in Aberlour, which is approximately 21 miles away and offers a broad curriculum.

For further education, the University of the Highlands and Islands offers a range of courses and has several campuses throughout the Highlands, with the nearest being in Elgin and Inverness. Other universities in Aberdeen and Dundee are available.

Home Report

There is no requirement for a home report.

Description

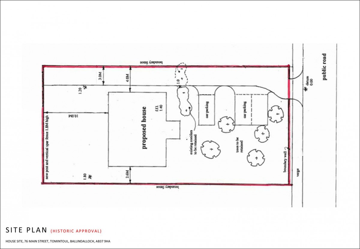
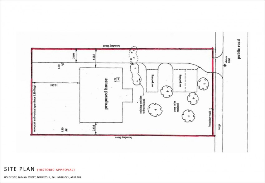
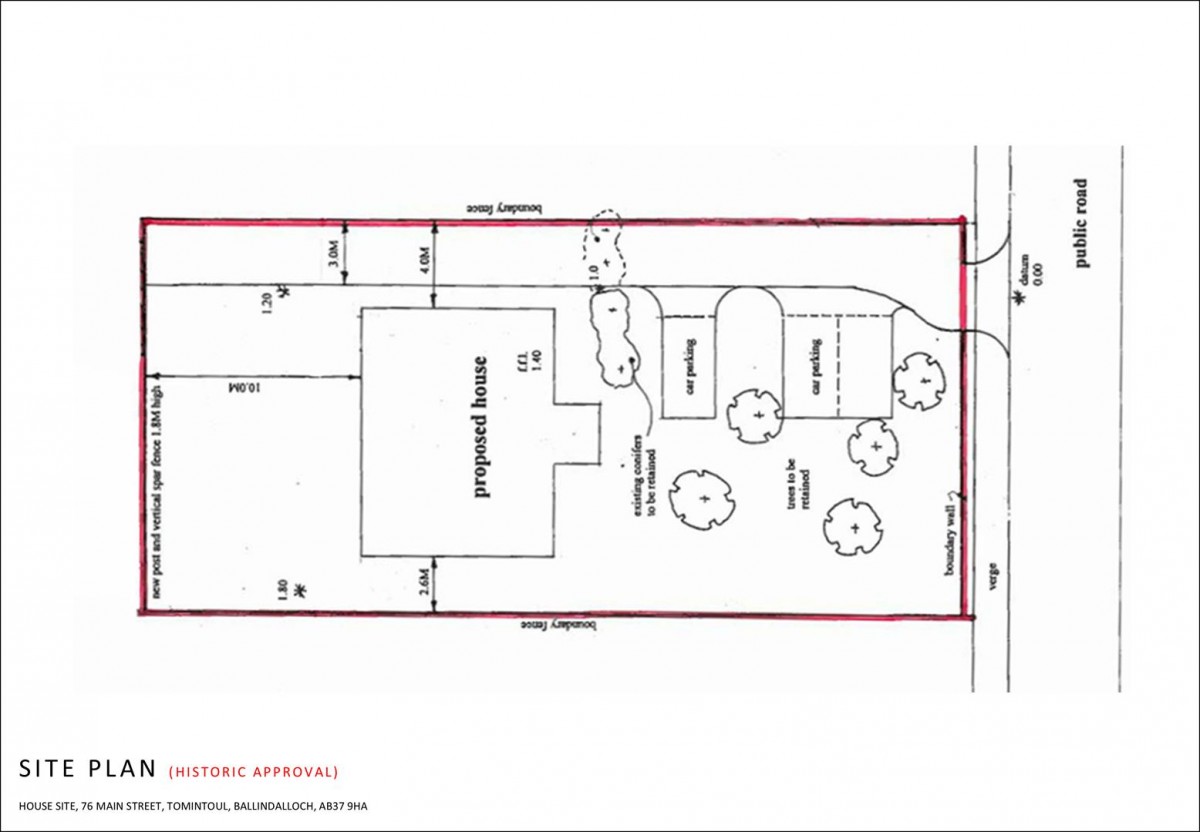
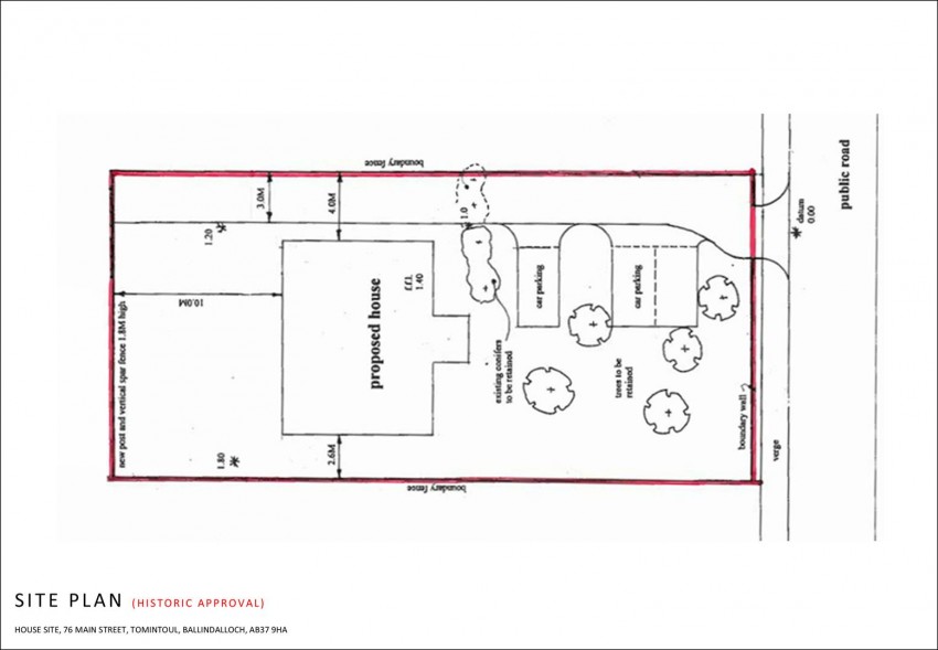
The site is approximately 0.15 acres (621 sq m approx). The site forms a largely rectangular shape and is relatively flat bound by wire stock fencing and stone walls. There has been multiple historic planning applications (NOW LAPSED) to erect a 1.5 storey, 4 bedroom detached family home.

Services

It is understood mains water services and mains electricity connection are available adjacent to the site. It is also understood that mains drainage connections are available nearby as communicated by Scottish Water. Purchasers should satisfy themselves on service provision and connection cost

Historical Planning

The site has a positive planning history, with Moray Council, for multiple previous applications approved for the erection of a one-and-a-half storey dwellinghouse. Historic consents were originally granted in 2005 (Ref: 05/02584/OUT) and subsequently renewed or extended in 2006, 2011, 2014, and 2017, demonstrating consistent planning support for residential development on this site.

All previous permissions have now lapsed and are no longer valid. However, given the number of past approvals and renewals, there may be scope for a future application to be viewed favourably.

For the avoidance of doubt, the plot is being sold without current planning permission in place, and any prospective purchaser should satisfy themselves regarding the potential for future planning consent.

Copies of historic drawings and approved plans are available for reference on the Moray Council ePlanning Portal - https://publicaccess.moray.gov.uk/eplanning/

17 Oct 2005 - Ref: 05/02584/OUT | Outline Application to build a one and half storey to the rear of | 76 Main Street Tomintoul Ballindalloch Moray AB37 9HA - Permitted

18 Sep 2006 - Ref: 06/02297/FUL | Erect dwellinghouse to rear of | 76 Main Street Tomintoul Ballindalloch Moray AB37 9HA - Permitted

08 Sep 2011 - Ref: 11/01474/APP | Extend planning consent 06/02297/FUL for further 3 years for the erection of house to rear of | 76 Main Street Tomintoul Ballindalloch Moray AB37 9HA - Permitted

13 Oct 2014 - Ref: 14/01965/APP | Extend planning consent ref 11/01474/APP (original consent 06/02297/FUL) to erect a dwellinghouse to rear of | 76 Main Street Tomintoul Ballindalloch Moray AB37 9HA - Permitted

11 Oct 2017 - Ref: 17/01586/APP | Renew planning consent ref 14/01965/APP (original consent 06/02297/FUL) to erect a dwellinghouse to rear of | 76 Main Street Tomintoul Ballindalloch Moray AB37 9HA - Permitted

Entry

By mutual agreement.

Price

Offers over £30,000 are invited

Viewings and Offers

Viewing is strictly by arrangement with and all offers to be submitted to:-Masson Cairns
Strathspey House
Grantown on Spey
Moray
PH26 3EQ
Tel: (01479) 874800
Fax: (01479) 874806
Email: property@lawscot.com
www.massoncairns.com

Copyright Information

All media content produced by Masson Cairns Ltd, including but not limited to images, videos, graphics, and written materials remains the property of Masson Cairns Ltd and is protected by copyright law. No part of this content may be reproduced, distributed, modified, or used in any form without the prior express written permission of Masson Cairns Ltd. Unauthorised use of this material is strictly prohibited and may result in legal action.

Call us to discuss a viewing

phone 01479 874800

Save Property Save PropertySaved

need conveyancing

Need conveyancing?

Our Professional and Experienced, team are available

Find out more
Zoopla Primelocation Rightmove s1 homes OnTheMarket